Residential, Lifestyle And Rural Property
$430,000

6 / 89 Flaxmill Road, Morphett Vale

Sold!
Property Type: Unit
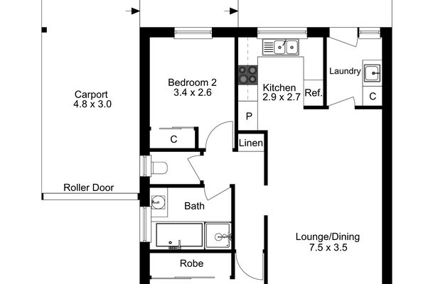
2 Beds 1 Bath 1 car space

Convenient Modern Living With Enticing Potential

Discover this delightful community titled 2 bedroom home, securely tucked away within a quiet gated community and perfectly positioned just minutes from shops, sporting hubs, cafés and the golden sands of Christies Beach.

Bursting with investment potential, or representing the ideal, low-maintenance ‘lock-up and leave’ lifestyle, generous open plan living is enhanced by fresh, classic décor and plenty of modern convenience.

Creating an inviting ambiance that will instantly impress, natural sunlight flows effortlessly into the main living/meals zone through a large forward-facing window, and you’ll be kept snug year-round courtesy a well-placed reverse-cycle split system. Great functionality also lies at the heart of the cheerful kitchen that’s equipped with a modern stainless steel oven, gas cooktop and loads of storage.

Want to entertain outdoors? That’s easy too, thanks to a covered patio out the back providing shade for the lovely paved alfresco zone.

A single carport, safely tucked away behind an auto-roller door, also doubles as extra entertaining space when hosting a larger crowd, while a car park in front of the roller door offers further parking for a second vehicle and a remote internal intercom access system provides the ultimate peace of mind.

Two substantial bedrooms appointed with built-in robes are serviced by a modern bathroom featuring a tub and shower, while the separate laundry is a handy addition, providing external access to the rear.

Positioned just steps from the Morphett Vale sports hub & Wilfred Taylor Reserve, weekends can be spent enjoying all the spoils of the spectacular Mid-Coast. Stroll along the stunning Christies Beach foreshore with your morning coffee, pop over to Colonnades to get the shopping done and be at Flinders University in under 15 minutes. Nearby McLaren Vale is just waiting to be explored, and the CBD is an easy commute via road or rail.
Bursting with investment potential, or representing the ideal, low-maintenance ‘lock-up and leave’ lifestyle, generous open plan living is enhanced by fresh, classic décor and plenty of modern convenience.

Property Features:
- Wonderful, low maintenance living within a quiet, community titled gated community
- Lovely brick façade with manicured gardens out the front
- Generous open plan living/meals zone with reverse-cycle split system climate control, easy-care tiles & fresh, neutral décor
- Well-appointed kitchen with quality stainless steel gas cooktop & oven, ample storage & lovely picture window
- Separate wing with two bedrooms, both with built-in robes
- Shared bathroom with tub, shower & vanity + separate toilet
- Separate laundry with handy external access
- Linen storage
- Secure single carport with roller door & drive-through access to rear yard + extra car pad/driveway for 2nd vehicle
- Private, fully-fenced & low-maintenance rear yard with easy-care paving & covered patio
- Remote security gate entry with internal intercom access

Nearby Conveniences & Attractions:
- Morphett Vale Sporting Hub (football, cricket, tennis, netball, lawn bowls) (~550 metres)
- Popular Wilfred Taylor Reserve (~3 min)
- M2 Southern Expressway Entry/Exit Ramp (~3 min)
- Thaxed Park Golf Club (~4 min)
- Southgate Plaza Shopping Centre (~4 min)
- Noarlunga Hospital (~5 min)
- Colonnades Shopping Centre (~6 min)
- Vibrant Christies Beach foreshore precinct (~8 min)
- Onkaparinga River Recreation Park & Wetlands (~8 min)
- Popular Port Noarlunga & Jubilee Park (~9 min)
- Onkaparinga River Mouth & Spectacular Southport Beach (~10 min)
- Flinders University (~15 min)
- Westfield Marion (~16 min)
- McLaren Vale (~17 min)
- Adelaide CBD (~28 min)

Nearby Schools:
- Lonsdale Heights Primary School
- Flaxmill School P-7
- Calvary Lutheran School
- Christie Downs Primary School
- Antonio Catholic School
- Christies Beach High School
- Marcellin Technical College
- Wirreanda High School
- Cardijn College
- Southern Vales Christian College

If this property sounds like your next opportunity, connect with Natalie Jones from We Connect Property today on 0403 799 983 to arrange an inspection or find out more.

Built in 2004
Certificate of Title: CT5890/375
Council: City of Onkaparinga
Council Rates: $1359pa (approx)
ESL: $98.45pa (approx)
SA Water: $142.10 (plus usage) (approx)
Land Size: 182m2 (approx)
Community Title
Admin/Sinking Fund ~$450pa

Video

Heating & Cooling

  • Air Conditioning
  • Reverse Cycle Air Conditioning

Outdoor Features

  • Fully Fenced
  • Outdoor Entertainment Area
  • Secure Parking

Indoor Features

  • Built-in Wardrobes

Location

2020 - 2026 | We Connect Property , All Rights Reserved | Privacy Policy. Powered by Eagle Software